Inviting Home with Open Layout in Meadow View Farms

USD $1,825,000
7 South Meadow Lane, Oak Bluffs, Massachusetts, 02557, USA

Property Highlights

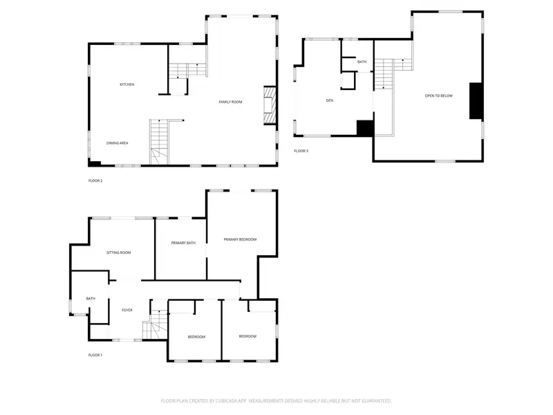
  • Open living area with soaring ceiling
  • Third-floor den offers extra space
  • Exterior decks on all levels
  • Access to tennis and pickleball courts
  • Located near bike path and golf club
  • Situated in Meadow View Farms community

Overview

Impressive four-bedroom home with a distinctive floor plan that combines privacy, comfort, and convenience in one of Oak Bluffs' most desirable locations. The main living area, filled with natural light and soaring ceiling, offers an open layout that is warm and inviting. A third floor den and exterior decks on all levels provide ample living space both indoors and out. Set within the sought-after Meadow View Farms community, residents enjoy access to beautifully maintained common meadows, as well as association tennis and pickleball courts. The neighborhood's peaceful setting fosters a true sense of community, while its prime location, just off the bike path, places Farm Neck Golf Club and all downtown attractions, within easy reach.
Show More Show Less

Property Features

7 South Meadow Lane, Oak Bluffs, Massachusetts, 02557, USA offers the following features:

Bedrooms: 4
Bathrooms: 3 Full
Living Area: 3142sf
Property Type: Residential
Status: Active
Reference ID: 32500363

Map