Charming 1883 Farmhouse on 22+ Acres in Newtown

USD $949,000
12 Valley Field Road South, Newtown, Connecticut, 06482, USA

Property Highlights

  • 22+ acres with rolling meadows and mature trees
  • Classic 1883 New England farmhouse with fireplaces
  • Guest cottage with additional 2-car garage
  • Total privacy with stone walls and open land
  • Covered patio off the main house
  • Potential for multiple lot divisions

Overview

Rare Opportunity in Newtown! Just minutes from town, this 22+ acre property offers unmatched potential. Featuring a classic 1883 New England farmhouse and a 442 sq. ft. guest cottage with additional 2 car garage, both ready for your vision and updates, this property is bursting with charm and possibilities. The land is the true star: Rolling meadows, mature trees, stone walls, and total privacy. Ideal for farming (agriculture, dairy, livestock, fiber, equestrian, kennels, events), recreation, or creating your dream estate. We believe there is potential for 3-5 lots with a possible first cut. The buyers will need to do their own due diligence. The main home offers original character with two fireplaces, spacious living areas, and a covered patio. The cottage adds flexibility for guests, a studio, or office. Whether you restore, reimagine, or redevelop, this is your chance to own one of Newtown's most exciting and versatile properties. Sold as is, where is. Endless options. Exceptional v
Show More Show Less

Property Features

12 Valley Field Road South, Newtown, Connecticut, 06482, USA offers the following features:

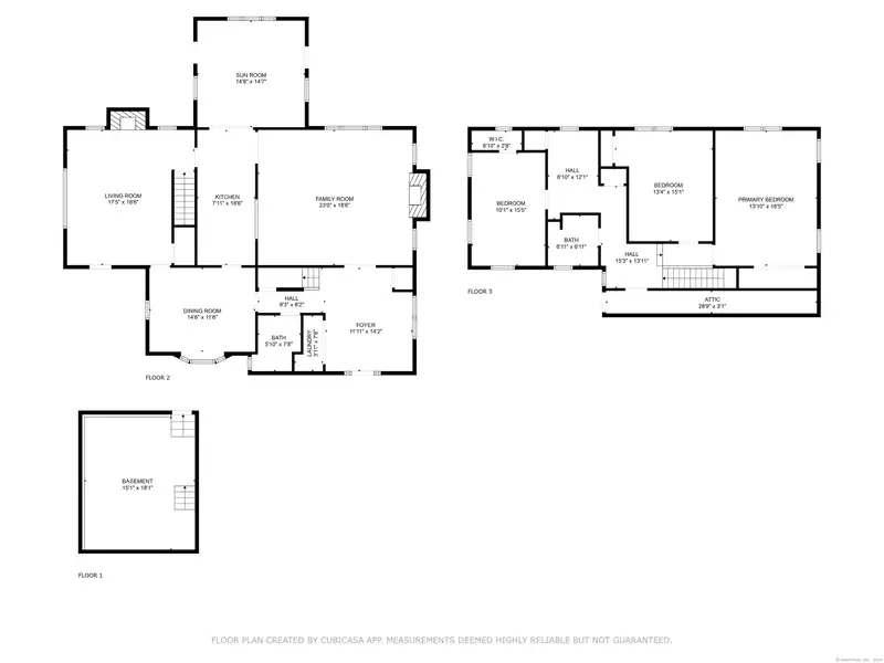
Bedrooms: 3
Bathrooms: 2 Full
Living Area: 2260sf
Property Type: Residential
Status: Pending
Reference ID: 24120214

What's Nearby

Local businesses near 12 Valley Field Road South, Newtown, Connecticut, 06482, USA:

School: 1.2 miles
Gym: 1.2 miles
Hospital: 1.4 miles
Grocery/Shopping Center: 1.5 miles
Police Station: 3.5 miles
Public Transportation: 5.2 miles

Map

The Local Vibe