Resort-style Living in Tranquil Gainesville Community

USD $199,000
1020 Northwest 124th Drive, Newberry, Florida, 32669, USA

Property Highlights

  • Resort-style amenities: pools, tennis, clubhouse
  • HOA covers roof, exterior, lawn care
  • Enclosed sunroom with skylights
  • Spacious vaulted ceilings
  • Large walk-in closet and shower
  • One-car garage and indoor laundry

Overview

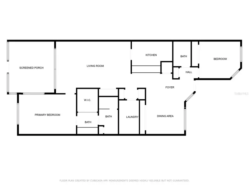
One or more photo(s) has been virtually staged. Enjoy resort-style amenities including 2 pools, tennis courts, and a clubhouse, all just steps away. The HOA takes care of roof, roof insurance, exterior, pest control, and lawn care so you can focus on what matters most: living your best life. Charming 2BR/2BA home - 1406 sq ft - in The Villas of West End! This tranquil Gainesville community is ideal for low-maintenance living! Nestled in a peaceful cul-de-sac, this home is the perfect retreat for those seeking comfort and ease. Soaring vaulted ceilings and a spacious living and dining area create an inviting atmosphere from the moment you step inside. Unwind in your enclosed sunroom with skylights, accessible from both the living room and primary suite—ideal for relaxing with a morning coffee or evening breeze. The primary bedroom has a large walk-in closet and bathroom with double sinks and a large walk-in shower. Additional perks include an indoor laundry room, a one-car garage, and split-bedroom layout for added privacy. Enjoy resort-style amenities including 2 pools, tennis courts, and a clubhouse, all just steps away. The HOA takes care of roof, exterior, pest control, and lawn care so you can focus on what matters most: living your best life. Well located near parks, shopping, healthcare (HCA Florida North Florida Hospital), and less than one mile from Town of Tioga—home to Gainesville Health & Fitness, restaurants, and boutique shops. 2019 HVAC, 2014 Water Heater, Roof 2018 (roof is HOA responsibility). Note: This is a PUD (Planned Unit Development) not a condo, which makes it easier to get loan financing.
Show More Show Less

Property Features

1020 Northwest 124th Drive, Newberry, Florida, 32669, USA offers the following features:

Bedrooms: 2
Bathrooms: 2 Full
Living Area: 1406sf
Property Type: Residential
Status: Active
Reference ID: GC530429

What's Nearby

Local businesses near 1020 Northwest 124th Drive, Newberry, Florida, 32669, USA:

School: < 1 mile
Hospital: < 1 mile
Grocery/Shopping Center: < 1 mile
Gym: < 1 mile
Public Transportation: < 1 mile
Police Station: 2.9 miles

Map