Serene Nature Views in a Spacious Family Home

USD $415,000
119 Tilton Drive, Mooresville, North Carolina, 28115, USA

Property Highlights

  • No homes behind, nature views
  • Large living room with fireplace
  • Versatile front room for dining or office
  • Spacious bonus room upstairs
  • Private backyard with landscaping
  • Close to shopping and I-77

Overview

Welcome to 119 Tilton Drive! This beautifully maintained 4-bedroom, 2.5-bath home is nestled in a peaceful subdivision with no homes behind you, just serene nature views. Inside, you'll love the spacious open floor plan featuring a large living room with custom built-ins flanking a cozy fireplace. The versatile front room can serve as a formal dining room or a private office. Upstairs, enjoy a generous bonus room and a spacious primary suite overlooking the private backyard. Thoughtful landscaping enhances the home's curb appeal, and you're just minutes from Lowe's corporate headquarters, I-77, shopping, and dining. Whether you're hosting or relaxing, this home offers the perfect balance of comfort, space, and tranquility. Don't miss this one!
Show More Show Less

Property Features

119 Tilton Drive, Mooresville, North Carolina, 28115, USA offers the following features:

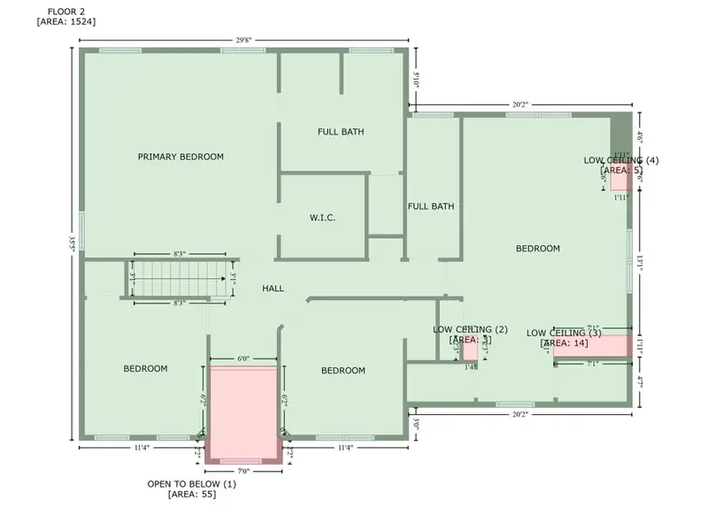
Bedrooms: 4
Bathrooms: 2 Full | 1 Half
Living Area: 2581sf
Property Type: Residential
Status: Active
Reference ID: 4274141

Map