Elegant Apartment Surrounded by Greenery in Citylife Area

EUR €3,000 (USD $3,494) *current conversion
Milano, Lombardia, 20145, Italy

Property Highlights

  • Stately apartment surrounded by greenery
  • Large double living room with natural light
  • Equipped kitchen with balcony
  • Balcony overlooks condominium garden
  • Two renovated bathrooms with tub and shower
  • Cellar included

Overview

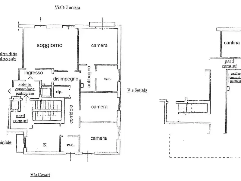
gvr1701 - Via Tranquillo Cremona - Stately apartment surrounded by greenery, between Buonarroti, Citylife and Pagano. POSSIBLE CONTRACTS TO COMPANIES. In an elegant stately building surrounded by greenery, a 167sqm stately dwelling develops itself on the first floor and conquers for the quietness, the light and the extraordinary well-kept context. The apartment opens onto a large and suitable entrance that leads to the welcoming double living room overlooking the beautiful charming residential street, lined with high trees that give privacy and a pleasant natural atmosphere. The habitable kitchen, complete with furnishings and appliances, overlooks directly onto the balcony facing the splendid condominium garden: an authentic oases of relaxation in the heart of the city, lush, silent, in a rare location, perfect to regenerate, reading in the shade of the trees or enjoying moments in the open air in a protected and private environment. The night area is composed of two large master bedrooms one of which has a balcony, a studio or third room and two windowed bathrooms, both renovated, one with tub and the other one with tub and a separate shower. The spaces outside the rooms for the wardrobes are comfortable: a large closet/utility room for one and a disengagement lined with comfortable wardrobes for the other. To complete a cellar. The apartment will be available starting from october and is rented with an equipped kitchen, complete bathrooms and some wardrobes. Centralized heating. The apartment has all day concierge service and lift and is located in one of the most sought after areas of the city, between Buonarroti, Citylife and Pagano, a refined residential and well-served neighborhood. A few steps from Subway MM1 (Wagner and Buonarroti stops), MM5 Tre Torri, trams 16 and 19, the beautiful Citylife Park and highway entrances. Contracts with primary companies are allowed. Class G – 247,2. € 36.000 annual rental fee - € 5.000,00 condo expenses. The choice of this property contributes to support the mission of Tranquillo Cremona. Foto, testi, planimetrie, etc, sono puramente a scopo indicativo-illustrativo e non costituiscono documenti con valore e presupposto contrattuale. Giorgio Viganò Real Estate - 027636151 - www.giorgiovigano.com
Show More Show Less

Property Features

Milano, Lombardia, 20145, Italy offers the following features:

Bedrooms: 3
Bathrooms: 2 Full
Living Area: 1797.57sf
Property Type: Condo
Status: Active
Reference ID: 86491760

Map