Custom Built Home with Scenic Golf Course Views

USD $475,000
1525 Bramoor Drive, Kokomo, Indiana, 46902, USA

Property Highlights

  • Scenic pond and golf course views
  • Large .79 acre lot
  • Finished walkout lower level with patio
  • Spacious eat-in kitchen with views
  • 3-car attached garage
  • Covered porch and raised composite deck

Overview

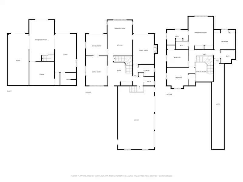
Welcome to this custom built 4 bedroom 3.5 bath 2-Story home with finished walkout lower level all located in highly sought after Moors of Chippendale S.D. complete with 18 hole scenic golf course. One of a kind breathtaking and spectacular scenic view of a large pond, 14th green & 15th tee box from the raised composite deck all on .79 ac lot. Over 4400 s.f. with 2766 s.f. above grade. Step onto the L-shaped covered Porch which also connects to the raised deck. The main level features a grand 2-story foyer w/ open stairway, Living Rm, Din. Rm, spacious eat-in kitchen, perfect for your morning coffee w/a great view! The Family Rm features recent flooring, cozy fireplace flanked by built-in bookshelves & sliding doors to the deck. The upper level offers four bedrooms & 2 full baths plus walk-in attic storage. The owner’s suite includes 2 double closets and a 7 ft walk-in closet, bath w/twin sink vanity. The lower level offers 3 large entertainment ready area such as a Movie Rm, exercise area plus a full bath and 3 sets of sliding doors to a concrete patio. Under the house storage & utility area is ideal for your lawn equipment etc. 3 car attached garage, irrigation system plus so much more. Possession on closing, in time for the Holidays!
Show More Show Less

Property Features

1525 Bramoor Drive, Kokomo, Indiana, 46902, USA offers the following features:

Bedrooms: 4
Bathrooms: 3 Full | 1 Half
Living Area: 3836sf
Property Type: Residential
Status: Active
Reference ID: 202543518

What's Nearby

Local businesses near 1525 Bramoor Drive, Kokomo, Indiana, 46902, USA:

School: 1.5 miles
Grocery/Shopping Center: 1.6 miles
Public Transportation: 2.1 miles
Gym: 2.7 miles
Police Station: 2.7 miles
Hospital: 3.2 miles

Map