Exquisite East Lincoln Park Home with Luxurious Design

USD $4,095,000
1720 North Mohawk Street, Chicago, Illinois, 60614, USA

Property Highlights

  • 12-foot ceilings and grand custom staircase
  • Chef's kitchen with professional appliances
  • Sun-filled family room with fireplace
  • Primary suite with dual walk-in closets
  • Roof deck with pergola and city views
  • Lower level media room and gym

Overview

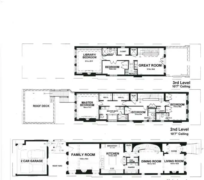
1720 N. Mohawk is a showpiece residence situated on one of East Lincoln Park's most coveted streets. Conceived by award-winning LG Development and masterfully designed by Dan Rak, known for his classically contemporary interiors that are precisely tailored and seamlessly executed. This remarkable 6,000 square foot home with six bedrooms achieves the perfect balance of classical architecture, modern comfort, and high design. From the moment you enter, the soaring 12-foot ceilings and grand custom staircase set the tone. The second and third floors feature impressive 10'6" ceilings, while even the lower level offers over 9 feet of ceiling height, ensuring volume and light throughout every level of the home. Every element speaks to exceptional craftsmanship, exquisite trim and millwork, custom built-ins, rift- and quarter-sawn hardwood flooring, elegant hardware, and dramatic fireplaces. Expansive windows frame tree-lined east views, while a proper entry gallery leads to a paneled living room and adjoining dining room anchored by a statement linear chandelier, creating a refined atmosphere for both everyday living and formal entertaining. At the heart of the home is a chef's kitchen designed for both beauty and performance: top-of-the-line cabinetry, professional-grade appliances, an oversized island, and a butler's pantry. The kitchen opens seamlessly to a large eat-in area and a sun-filled family room with coffered ceiling, fireplace, and direct access to private outdoor spaces, including a roof deck with pergola over the 2.5 car garage. The second-floor hosts two ensuite bedrooms and the primary suite, a serene retreat with dual walk-in closets, fireplace with custom built-ins, and a spa bath clad in marble. This sanctuary includes radiant heated floors, polished nickel fixtures, a double vanity, steam shower, and soaking tub. Multiple laundry rooms provide convenience on multiple levels. A skylit staircase brings you to the top level, where a flexible great room with a wet bar opens to a large roof deck with private tree top views. Additional rooms include a private office, extra bedroom, and bath. The oversized windows throughout the home allow an abundance of sunlight. The lower level offers an extraordinary mix of style and function, with a media room with bar, a gym, and a sixth ensuite bedroom. The home was intelligently designed elevator-ready, with stacked closet space available for future installation if desired. The exterior is secured with a 6-foot wrought iron fence, snow melt system, Doorbird video doorbell, irrigation & custom planter boxes. This location cannot be beat, and no detail has been overlooked at 1720 Mohawk-this residence is the epitome of refined Chicago luxury, designed for grand entertaining as well as intimate daily living.
Show More Show Less

Property Features

1720 North Mohawk Street, Chicago, Illinois, 60614, USA offers the following features:

Bedrooms: 6
Bathrooms: 5 Full | 2 Half
Living Area: 5900sf
Property Type: Residential
Status: Active
Reference ID: 12461159

Map