Unique Stone Home on 213 Acres in Belgrade

USD $1,500,000
45 Freedom Road, Belgrade, Maine, 04917, USA

Property Highlights

  • 213 acres of private land in Belgrade
  • Stone home with 12" thick fieldstone walls
  • Two fireplaces on main and upper levels
  • Spacious 30x70 barn for animals or storage
  • Mature fruit trees including pears and apples
  • Large driveway ensures strong privacy

Overview

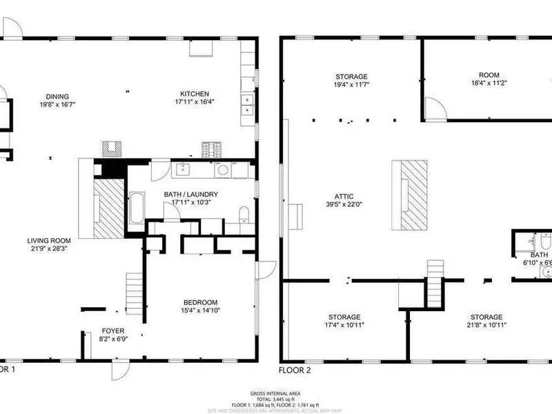
For Sale ~ The Estate of local portrait artist Cecily Diamond. 213 acres of privacy in Belgrade. The home is a design inspired by architect and author Scott Nearing. Mr. Nearing's unique stone home designs can be found throughout the state of Maine. The estate offers 3,329 sq. ft., 2 story stone built home with 12'' thick walls made from fieldstone collected from the land, along with all the custom post & beams that constructed the home. This property has 2 magnificent fireplaces, 1st fireplace on the main living area, the 2nd fireplace is on the upper level. The home was used in the 1970's and 1980's as a family farm, raising highland cattle and great Pyrenees. To the side of the property is a 30x70 spacious barn, great for animals or storage. The property was known for it's elaborate symmetrical gardens, large pear trees, apple trees, and grape vines, but the most interesting is the huge Arctic kiwi bush which has fruit. Through the years they remain but need a little attention. If you are looking for farm land whether it be livestock or to harvest crops this property has great potential. The estate has distinctive personality. The interior will need updating and the second level will need completion but the structure is strong and has sturdy bones. Driveway is 1,200 feet giving all the expectations of privacy. No restrictions on Freedom Drive.
Show More Show Less

Property Features

45 Freedom Road, Belgrade, Maine, 04917, USA offers the following features:

Bedrooms: 3
Bathrooms: 1 Full | 1 Half
Living Area: 3329
Property Type: Residential
Status: Active
Reference ID: 1631350

Map