Property Highlights
- Lake and hill panoramic views
- Spacious terraces and paved outdoor areas
- Large, bright living and dining rooms
- Well-kept garden with lakeside beach access
- High-quality materials and refined design
- Separate guest area with bathroom and greenhouse
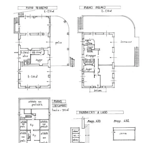
Overview
Property Features
74 SS33 del Sempione, Belgirate, Piemonte, 28832, Italy offers the following features:
Bedrooms:
6
Bathrooms:
4 Full
Living Area:
5381.96sf
Property Type:
Single Family
Status:
Active
Reference ID:
8143847
What's Nearby
Local businesses near 74 SS33 del Sempione, Belgirate, Piemonte, 28832, Italy:
Public Transportation:
< 1 mile
School:
< 1 mile
Grocery/Shopping Center:
< 1 mile
Gym:
1 mile
Police Station:
1.1 miles
Hospital:
2.4 miles
Map
The Local Vibe
See all Local Photos
See all