Meticulously Maintained Home with Large Patio and Pool

USD $640,000
8243 Sky View Circle, West Des Moines, Iowa, 50266, USA

Property Highlights

  • Remodeled kitchen with stainless appliances
  • Large walk-in pantry and custom cabinets
  • Main floor living/den and family room
  • 30' x 35' concrete patio with lounge pool
  • 3-car garage with EV charging and epoxy floor
  • Lawn irrigation system and recent upgrades

Overview

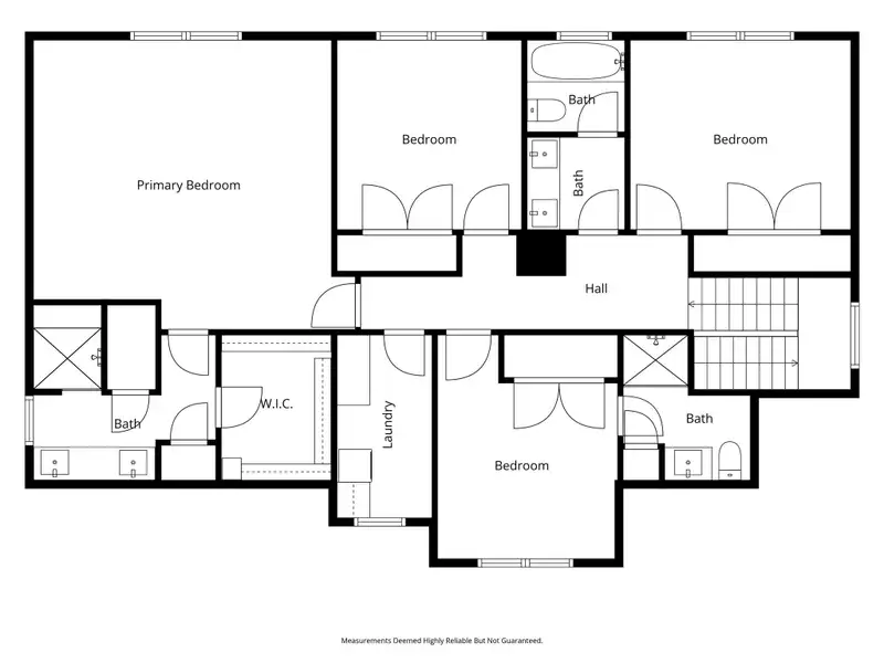
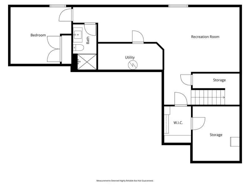
Stunning one-owner 5 BR, 4 BA 2-Story located in the Heritage Bend neighborhood West Des Moines. Main floor living/den, family rm w/gas log, dining/eat-in kitchen w/large island, walk-in pantry, built in custom cabinets & workspace, drop zone & 1/2 bath. 2nd floor Primary Suite, 3 additional BR's including 3 BA spaces & laundry. Lower level finish includes family/rec room & 5th BR & BA w/egress. This meticulously maintained home features many custom amenities including several recent home improvements. Newer upgrades include the following ..Remodeled kitchen, countertops & SS appliances, main level LVT flooring, high-efficiency HVAC system, garage EV charge station, lawn irrigation system, large 30' x 35' concrete patio including a 10' x 15' inground Lounge Pool! 3-car garage with plenty of storage space & epoxy flooring. Great Wdm location on a quiet cul-de-sac with access to multiple entertainment & restaurant venues. Please call for further information or to arrange a private showing.
Show More Show Less

Property Features

8243 Sky View Circle, West Des Moines, Iowa, 50266, USA offers the following features:

Bedrooms: 5
Bathrooms: 1 Full | 1 Half
Living Area: 2545sf
Property Type: Residential
Status: Active
Reference ID: 731106

What's Nearby

Local businesses near 8243 Sky View Circle, West Des Moines, Iowa, 50266, USA:

School: < 1 mile
Gym: < 1 mile
Grocery/Shopping Center: < 1 mile
Public Transportation: 1 mile
Hospital: 1.2 miles
Police Station: 3.5 miles

Map