Elegant Reception Flat with Views over the Seine

EUR €9,360,000
Paris, France

Property Highlights

  • Private mansion house location
  • Views over Seine and Paris bridges
  • Grand staircase with glass roof
  • Four reception rooms including library
  • Master suite with bathroom and dressing room
  • Private garage with separate entrance

Overview

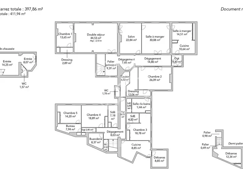
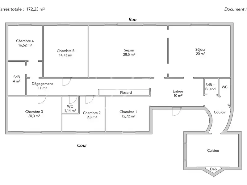
Ideally located between the Seine and the Marais, in the heart of a private mansion house. A reception flat with a floor surface area of 433.94sqm (397.86sqm Carrez), featuring a majestic entrance via a grand staircase that opens onto an entrance gallery with a glass roof, a succession of four reception rooms with unique views over the Seine, the bridges of Paris and the Hôtel Lambert. There is a boudoir, a double lounge with a fireplace and columns, a library, a splendid dining room and a galley kitchen. The second part of the flat extends around the courtyard of honour. It is dedicated to family life, with a master suite complete with bathroom and dressing room, three large bedrooms with two bathrooms, three toilets, a laundry room, a second kitchen with pantry, a service entrance and a private staircase leading to a garage. This incomparable property benefits from the charm of the grande époque with its numerous marble fireplaces, medallions, cartouches, stained glass windows and mouldings.
Show More Show Less

Property Features

Paris, France offers the following features:

Bedrooms: 5
Bathrooms: 2 Full | 3 Half | 2 One Quarter
Living Area: 4520.84sf
Property Type: Condo
Status: Active
Reference ID: 82836342

What's Nearby

Local businesses near Paris, France:

School: < 1 mile
Gym: < 1 mile
Hospital: < 1 mile
Grocery/Shopping Center: < 1 mile
Public Transportation: < 1 mile
Police Station: < 1 mile

Map