Elevated 1+ Acre Lot with Stunning Views Available

USD $24,250,000
3 South Lake Trail, Palm Beach, Florida, 33480, USA

Property Highlights

  • Over 1 acre of elevated land
  • Potential to subdivide into 3 lots
  • Located on quiet cul-de-sac street
  • Mature trees providing privacy
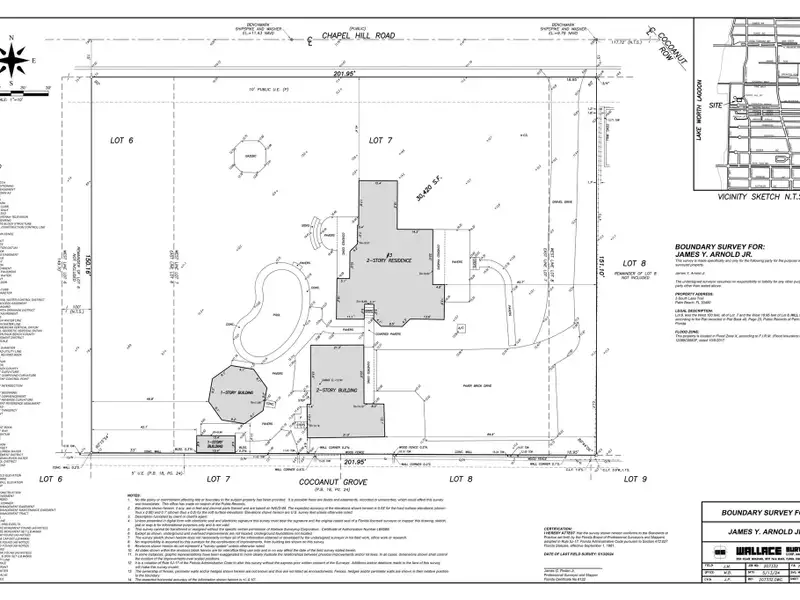
  • Large lot size approximately 45,490 SF
  • Possible scenic views from second floor

Overview

A once-in-a-lifetime opportunity to own one of Palm Beach's most storied parcels, originally acquired from Henry Flagler interests, nearly a century ago. This 30,324 SF property (~201 frontage x ~151' deep) crowns Chapel Hill, one of the island's highest points (Elevation: 16.6'), capturing ocean breezes and potential vistas of The Breakers and its renowned golf course. Enveloped by mature trees on a picturesque cul-de-sac of only five homes, it offers exceptional privacy and tranquility in the very heart of Palm Beach. Perfectly situated among the Flagler Museum, The Royal and Glazer Hall, The Breakers, and The Society of the Four Arts, the address balances exclusivity with effortless access to Palm Beach's finest cultural, dining, and shopping destinations. Whether you envision
Show More Show Less

Property Features

3 South Lake Trail, Palm Beach, Florida, 33480, USA offers the following features:

Bedrooms: 3
Bathrooms: 3 Full
Property Type: Residential
Status: Active
Reference ID: 4-11079637

What's Nearby

Local businesses near 3 South Lake Trail, Palm Beach, Florida, 33480, USA:

School: < 1 mile
Public Transportation: < 1 mile
Hospital: < 1 mile
Gym: < 1 mile
Grocery/Shopping Center: < 1 mile
Police Station: < 1 mile

Map