Charming Agritourism Property with Panoramic Hill Views

EUR €1,600,000 (USD $1,878,860) *current conversion
Fossombrone, Italy

Property Highlights

  • Panoramic hill views
  • Restaurant hall with kitchen
  • Nine rooms with private bathrooms
  • Three independent apartments
  • Large 15,000 sqm park with pool
  • Built new in 2011 with quality materials

Overview

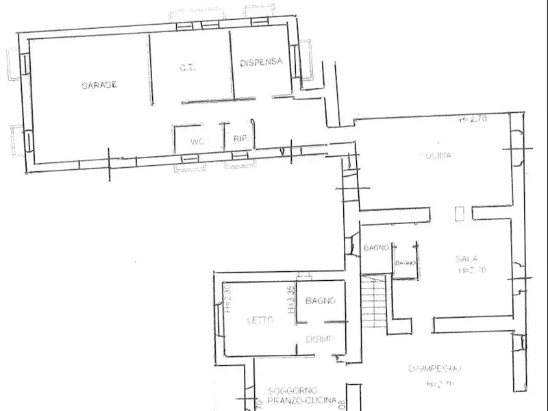
Fossombrone (PU) In a dominating and sunny position, with panoramic views of the surrounding hills, we offer for sale accommodation facility for agritourism use of 528sqm composed of: restaurant hall with kitchen, nine rooms with private bathroom, three independent apartments, external dependance of 48sqm, all surrounded by a park of 15.000sqm with swimming pool. The property is spread over three floors: On the ground floor we find the restaurant room with large windows overlooking the garden, fully equipped kitchen with access to the storeroom with pantry and bathroom for staff. On the second floor with separate entrance and a direct access from the restaurant, we find a living room with fireplace, four bedrooms with private bathroom, from convenient internal staircase we access the second floor consisting of five double bedrooms with private bathroom. Completing the main body are three self-contained apartments with independent entrance consisting of living room with kitchenette, double bedroom and bathroom. All surrounded by a beautiful park equipped with swimming pool and 48sqm dependance for convivial use. The structure was demolished and rebuilt ex-novo in 2011 with particular attention to the materials used of value and quality such as Furlo stone, parquet, exposed beams and terracotta tiles. New plant, new fixtures, air conditioning and mosquito nets. Energetically implemented by 54 KW of photovoltaic with 33 KW storage batteries. Ideal as an accommodation facility, already started and ready to use, possibility to purchase fully furnished. Price: 1.600.000 € "APE C" IPE: 123 kwh/sqm/year.
Show More Show Less

Property Features

Fossombrone, Italy offers the following features:

Bedrooms: 13
Bathrooms: 12 Full
Living Area: 5683.34sf
Property Type: Single Family
Status: Active
Reference ID: 86013732

What's Nearby

Local businesses near Fossombrone, Italy:

Gym: < 1 mile
Grocery/Shopping Center: < 1 mile
School: < 1 mile
Public Transportation: < 1 mile
Police Station: < 1 mile
Hospital: < 1 mile

Map