Lakefront Luxury Home with Panoramic Views and Amenities

USD $6,900,000
8345 Eagle Mountain Circle, Fort Worth, Texas, 76135, USA

Property Highlights

  • Lakefront property on Eagle Mountain Lake
  • Custom gourmet kitchen with high-end appliances
  • Floor-to-ceiling windows with panoramic views
  • Heated pool with tanning ledges and spa
  • Ample air-conditioned garage plus detached office
  • Private dock with boat slip and jet ski lifts

Overview

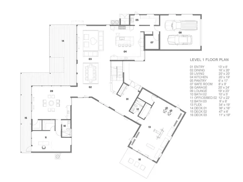
Scheduled for completion in January, 2026 - Privacy, Luxury, Proximity and Endless Lake Views! Welcome to a rare opportunity to own lakefront property on Eagle Mountain Lake. This exquisite 2.43-acre estate boasts a stunning 6,343sf luxury home with impeccable attention to detail and premium custom features throughout, this spectacular home offers unmatched quality. Designed by renowned architects Far + Dang, built by luxury home builder LR Fine Homes, interior design by Susan Semmelmann, with custom tile curation by Erin Adams Designs this estate promises to be a unique refuge upon completion. With the highest elevations and deepest waters of Eagle Mountain Lake, this house was designed with floor to ceiling windows for natural light, jaw dropping panoramic views and unlimited sunsets. For the true gourmet a kitchen with custom cabinetry, Subzero, Wolf and BlueStar appliances, custom wine case, wet bar and scullery. The spacious primary suite features a private patio, fireplace, coffee bar, large bathroom and custom closet. An indoor atrium ideal for growing herbs and enjoying morning sunrises. The property has an additional 1,200sf air conditioned garage providing ample space for vehicles, with a detached 360sf air conditioned building, perfect for an office or art studio. A newly constructed dock awaits, complete with a boat slip and two jet ski lifts. Over 2,000sf of outdoor deck space with a 40 long pool, tanning ledges and heated spa. Gated entry, solar power, with room for sports courts or helipad. Adjacent to the neighborhood is the 3,621-acre Fort Worth Nature Preserve. Downtown Fort Worth is only 14 miles and the Stockyards 11 miles, YeeHaw!
Show More Show Less

Property Features

8345 Eagle Mountain Circle, Fort Worth, Texas, 76135, USA offers the following features:

Bedrooms: 4
Bathrooms: 5 Full
Living Area: 3831sf
Property Type: Residential
Status: Active
Reference ID: 21131309

Map