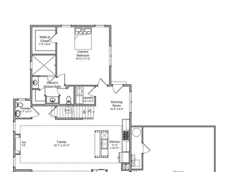
Main Level Owner's Suite in New Build Home

USD $599,900
8629 Unionville Road, Easton, Maryland, 21601, USA

Property Highlights

  • Main level owner's suite with walk-in closet
  • Open concept family room with gas fireplace
  • Luxury kitchen with quartz countertops
  • Spacious wrap-around front porch
  • Energy-efficient HVAC and insulation
  • 246 sqft paver patio with privacy trees

Overview

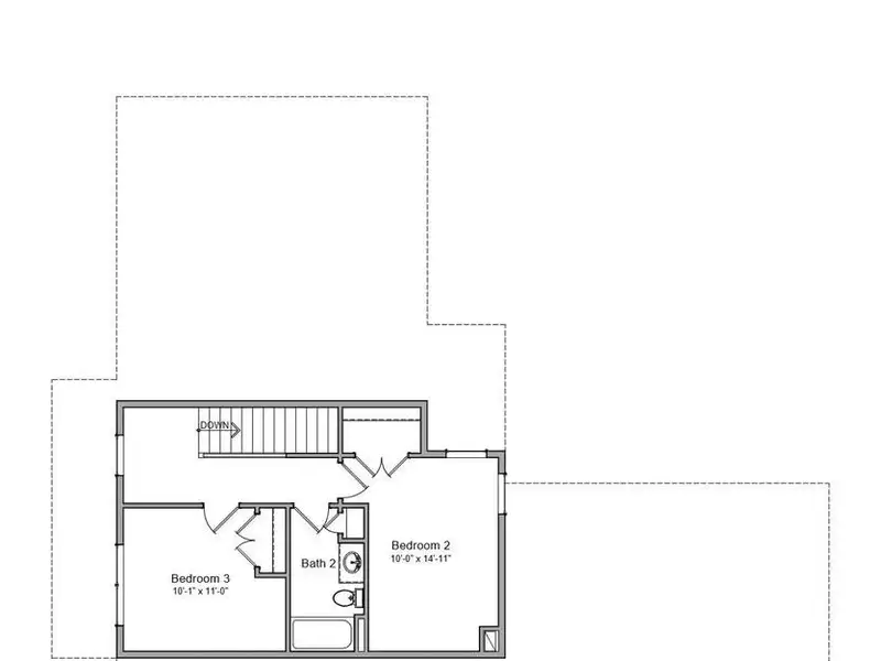
PUBLIC OPEN HOUSE SATURDAY 11/8 FROM 1-3PM. This spacious 2200+ square foot NEW BUILD is MOVE IN READY and features a **MAIN LEVEL OWNER'S SUITE** and high end appointments throughout. Step into the main level and enjoy an open concept layout including a spacious family room with gas fireplace, formal office with cathedral ceiling, morning room, dining area and a half bath. The luxury kitchen features a center island with breakfast bar, high end soft close shaker cabinets, open apron farmhouse sink, quartz countertops, subway tile backsplash and a 5pc stainless steel appliance package. The main level owners suite features a walk-in closet and a spacious ensuite bath with dual vanities and a 7x6 spa shower with dual shower heads. The upper level includes two additional bedrooms and a second full bath. Additional amenities include LVP flooring throughout the main level, ceramic tile in all baths and laundry room, public sewer, 30 year architectural singles, 92% efficient Carrier HVAC, 2x6 framing, R49 insulation in ceiling, R21 insulation in walls, air seal package, a 246 sqft paver patio, and a spacious wrap around front porch. Privacy tree line planted and a white split rail fence installed along the front of property in Oct 25'. All of this in a convenient location within 3 miles of downtown Easton shops, restaurants and grocery. NO HOA or restrictive covenants and public sewer service, not private septic. This one won't last long, schedule your private showing today!
Show More Show Less

Property Features

8629 Unionville Road, Easton, Maryland, 21601, USA offers the following features:

Bedrooms: 3
Bathrooms: 2 Full | 1 Half
Property Type: Residential
Status: Pending
Reference ID: MDTA2011982

What's Nearby

Local businesses near 8629 Unionville Road, Easton, Maryland, 21601, USA:

Grocery/Shopping Center: 1.4 miles
Hospital: 1.5 miles
School: 1.6 miles
Gym: 1.6 miles
Public Transportation: 1.7 miles
Police Station: 1.9 miles

Map