Panoramic Valley Views on Approved Tuscan Lot

USD $2,648,800
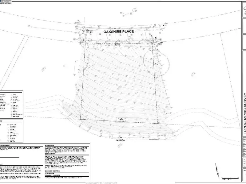
457 Oakshire Place, Alamo, California, 94507, USA

Property Highlights

  • Panoramic valley and golf course views
  • Approved Tuscan house design
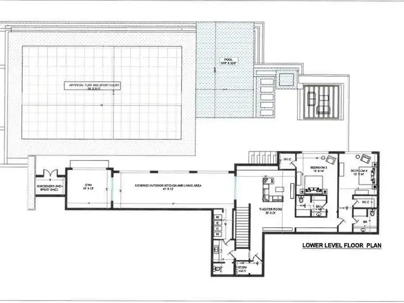
  • Separate 535 sq ft ADU with access
  • Attached garage included
  • Located in golf cart community
  • Near excellent schools and trails

Overview

RARE OPPORTUNITY LOT WITH PANORAMIC, SPECTACULAR VIEWS OF THE VALLEY AND THE GOLF COURSE IN ALAMO, ROUND HILL COUNTRY CLUB NORTH. A TUSCAN HOUSE DESIGN IS APPROVED ON THE LAST AND BEST VIEW LOT IN A BEAUTIFUL NEIGHBORHOOD. THIS 5,405+/- SQUARE FOOT HOUSE HAS THE PERFECT FLOOR PLAN, PLUS A 535+/- SQUARE FOOT ADU WITH SEPARATE ACCESS AND AN ATTACHED GARAGE. THIS NEIGHBORHOOD HAS GOLF CART LIVING, WITH THE BEST SUBURBAN RESTAURANTS, EXCELLENT SCHOOLS, AND A REGIONAL TRAIL HEAD AT THE END OF THE STREET FOR SCENIC WALKING. CHECK ASSOCIATED DOCUMENTS.
Show More Show Less

Property Features

457 Oakshire Place, Alamo, California, 94507, USA offers the following features:

Property Type: Land
Status: Active
Reference ID: 41117412

Map