Contemporary Family Residence with Resort-style Pool in Wareemba

Price Upon Request
87A Edenholme Road, Wareemba, NSW, 2046, Australia

Property Highlights

  • Architectural façade with curved upper level
  • Open-plan living with covered alfresco terrace
  • Marble kitchen with oversized island
  • Landscaped garden with glass-framed pool
  • Internal lift to all levels
  • Basement garage with storage and workshop

Overview

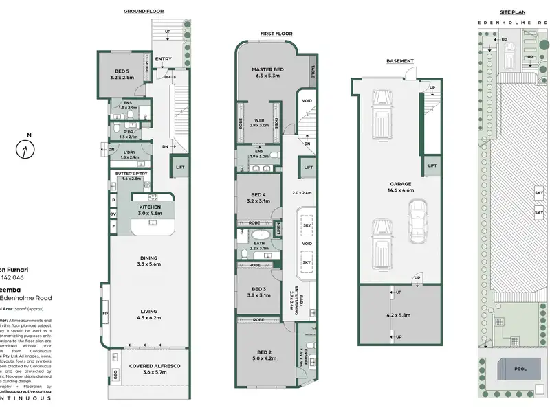
Setting a new benchmark for contemporary design in Wareemba, this bespoke residence built by JPH Built combines architectural finesse with flawless family functionality. Every detail from the sweeping curves and full-height glazing to the marble surfaces and herringbone oak floors - has been executed with precision, delivering an exceptionally refined home just moments from the peninsula's best lifestyle amenities. A rare offering in a tightly held village pocket, the home spans three generous levels with lift access, multiple living zones, a private alfresco entertaining terrace and a resort-style pool. The layout is designed for real family living: grand parents'/guest suite on entry level, open-plan living anchored by a showpiece kitchen, and a luxurious master retreat with dressing room and designer ensuite. Positioned for unbeatable convenience, you're a short walk to Wareemba village cafés, Abbotsford shops, Lyons Road restaurants, schools, waterfront parks and frequent CBD transport. Property Features • Architectural façade with curved upper level, full-height windows and elevated street presence • Expansive open-plan living and dining flowing to a covered alfresco terrace with outdoor kitchen • State-of-the-art marble kitchen with oversized island, integrated appliances and butler's pantry • Four upper-level bedrooms including a luxurious master suite with walk-in dressing room and ensuite • Entry-level guest/5th bedroom with ensuite - ideal for in-laws, visitors or au pair • Designer bathrooms featuring premium stone, brushed brass tapware and custom joinery • Landscaped rear garden with level lawn and glass-framed pool • Herringbone oak floors, ducted air conditioning, skylights and architectural lighting • Internal lift to all levels for absolute convenience • Basement garaging for multiple vehicles with additional storage/workshop zone • High-end finishes throughout; crafted for low-maintenance luxury Lifestyle & Location • 200m to Wareemba village for cafés, bakeries, IGA and everyday essentials • 5 minutes to Abbotsford and Chiswick shops, including eateries, boutiques and amenities • Moments to Campbell Park, Halliday Park foreshore and the waterfront walking trails • Quick access to The Bay Run, the Inner West's most iconic lifestyle loop • Close to quality schools: Russell Lea Public, Abbotsford Public, Rosebank College, Domremy College • Frequent transport options with buses to the CBD, Drummoyne, Burwood and Five Dock • A peaceful street surrounded by quality homes in an increasingly sought-after pocket
Show More Show Less

Property Features

87A Edenholme Road, Wareemba, NSW, 2046, Australia offers the following features:

Bedrooms: 5
Bathrooms: 4 Full
Property Type: residential
Status: Active
Reference ID: 222P619184

Map

The Local Vibe