Luxury Duplex with Modern Design and Serene Views

Price Upon Request
21a Dorothy Street, Ryde, NSW, 2112, Australia

Property Highlights

  • Double brick and concrete construction
  • Open plan living and dining space
  • Marble kitchen with premium appliances
  • Covered alfresco terrace with manicured lawn
  • Spacious garage for three vehicles
  • Close to Santa Rosa Park and shops

Overview

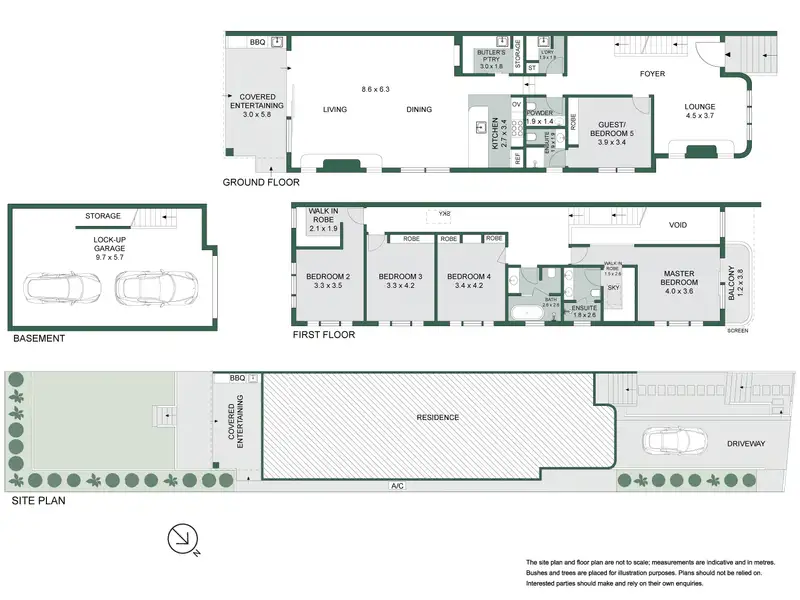
Striking street presence and serene district views set the tone for this luxury duplex with basement in a sought-after pocket of Ryde. A masterpiece in contemporary living architecturally designed to immaculate standards, it delivers remarkable quality across two bright spacious levels, showcasing stylish interiors and sleek custom appointments throughout. This solid double brick and concrete home is built for the growing family in mind. A relaxed layout of open plan living enjoys seamless connection to the outdoors which have been perfectly curated for entertaining guests, while the lavish accommodation will suit the needs of large, growing or intergenerational families. Primed for lifestyle ease, this immaculate offering is moments to the idyllic surrounds of Santa Rosa Parklands, an easy stroll to local Midway shops and close to the major shopping hubs of Top Ryde and Macquarie Centre. - Sweeping open plan living and dining zone and separate family lounge - Flawless crisp white interiors, timber floors and soaring skylight ceilings - Covered alfresco terrace and elevated manicured lawn bathed in sunshine - Marble kitchen, premium Fisher & Paykel appliances, large butler's pantry - Breakfast bar, double oven, and separate custom-designed bar area - Five generously sized bedrooms, all with built-in robes, two with ensuite - Main suite fitted with custom walk-in robe and private balcony with views - Downstairs guest bedroom fitted with private ensuite, second bed with WIR - Luxurious bathrooms appointed with rainfall showers and separate bathtubs - Ducted air-con, internal laundry, powder room, internal access to garage - Spacious garage with space for three vehicles plus understairs storage - Additional parking on driveway, walk to bus stop with routes to Macquarie - Short walk to Santa Rosa Park, Midway Shopping Centre, cafes and more - Within local catchment for Smalls Road PS and Ryde Secondary
Show More Show Less

Property Features

21a Dorothy Street, Ryde, NSW, 2112, Australia offers the following features:

Bedrooms: 5
Bathrooms: 3 Full
Property Type: rental
Status: Active
Reference ID: 222P622482

Map

The Local Vibe