Custom Home with Breathtaking Table Rock Lake Views

USD $629,500
3133 Talking Rocks Road, Reeds Spring, Missouri, 65737, USA

Property Highlights

  • Table Rock Lake views from every room
  • Fully wheelchair accessible with elevator
  • Spacious open concept living/dining area
  • Large master bedroom with ensuite bathroom
  • Lower level with second living area
  • Hidden ensuite bedroom behind bookcase door

Overview

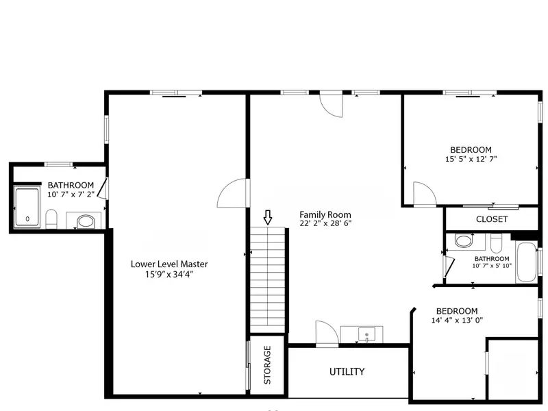
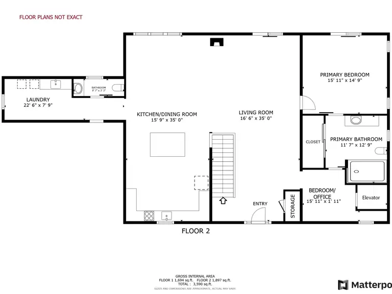
Experience breathtaking Table Rock Lake views and unmatched privacy on over 3.5 acres!This gorgeous custom home captures stunning lake views from nearly every room and sits on a rare, expansive 3.6 acre parcel--providing the perfect blend of seclusion, tranquility, and outdoor space. From peaceful mornings on the deck to evening sunsets over the water, this property delivers the lake-life dream.Designed with comfort and accessibility in mind, the entire home is wheelchair accessible and includes a full elevator. Natural light fills the spacious upper level, featuring a large master suite, beautifully appointed bathroom, bright kitchen, open-concept living and dining area, half bath, laundry room, and dedicated office space.The lower level lives like its own private retreat with a second living area, kitchenette, guest bedroom and bathroom, utility room, additional office/storage space, and--best of all--a hidden bookshelf door leading to a second ensuite bedroom. Perfect for guests, multi-generational living, or the ultimate private hideaway. Two additional bedrooms, making this 5 total, have been partially utilized for the elevator.
Show More Show Less

Property Features

3133 Talking Rocks Road, Reeds Spring, Missouri, 65737, USA offers the following features:

Bedrooms: 3
Bathrooms: 3 Full | 1 Half
Living Area: 3868sf
Property Type: Residential
Status: Active
Reference ID: 60281304

What's Nearby

Local businesses near 3133 Talking Rocks Road, Reeds Spring, Missouri, 65737, USA:

School: 1.9 miles
Gym: 2.3 miles
Grocery/Shopping Center: 2.4 miles
Police Station: 3 miles
Hospital: 3.3 miles
Public Transportation: 8 miles

Map