Ready-to-build Residential Lot with Approved Plans

USD $60,000
1019 Maple Park Drive, Paradise, California, 95969, USA

Property Highlights

  • 10,000 SF spacious lot
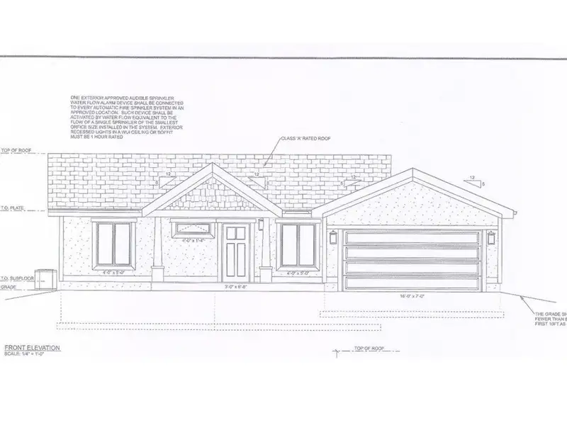
  • Approved plans for 972 SF home
  • Attached 462 SF garage included
  • Covered front porch design
  • Foundation already installed
  • Septic system installed

Overview

Prime Opportunity: Ready-to-Build Residential Lot with Approved Plans! Looking for a head start on your next residential project? This spacious 10,000 SF lot presents an exceptional turnkey opportunity for investors, developers, or owner-users looking to bring a new home to life—without the usual delays of starting from scratch! With approved plans already in place for a 972 SF, 2 bed/2 bath home plus an attached 462 SF garage and covered front porch, this property is primed for rapid development. Even better, the foundation and septic system are already installed, allowing you to fast-track construction and move toward completion much sooner than a ground-up build. Call Kim at 530-520-6618 for more information.
Show More Show Less

Property Features

1019 Maple Park Drive, Paradise, California, 95969, USA offers the following features:

Property Type: Land
Status: Active
Reference ID: SN25135919

Map