Historic Downtown Loft with Panoramic Bay Views

USD $524,750
436 Harrison Avenue #4, Panama City, Florida, 32401, USA

Property Highlights

  • Historic industrial-style lofts in downtown
  • Panoramic views of St. Andrews Bay
  • High ceilings with concrete floors
  • Modern kitchen with stainless appliances
  • Close to dining, shops, and marina
  • Members-only lounge and coworking spaces

Overview

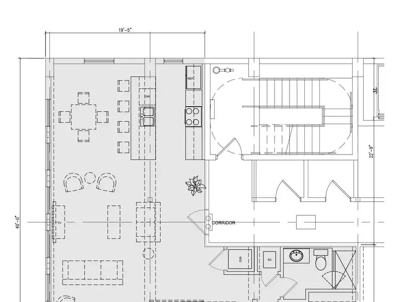
Introducing The Mashburn Building, an iconic structure featuring four stories and 27,000 square feet of historical charm, offering 18 industrial-style residential lofts. Located in the vibrant heart of Historic Downtown Panama City, this distinctive development features a dynamic fusion of commercial and residential spaces spread across multiple levels. Providing versatile layouts tailored to diverse preferences, encompassing co-working spaces, a restaurant, an inviting members-only lounge, and the potential addition of a rooftop lounge. Experience elevated living on floors three and four. Presenting Loft 4, boasting two bedrooms and 1,100 square feet of space, offering breathtaking vistas of St. Andrews Bay and Downtown Panama City. Enjoy panoramic views facing North, South, and West, including a picturesque overlook of Harrison Avenue. This loft seamlessly combines classic allure with modern sophistication, featuring industrial-inspired design elements such as concrete floors complemented by nearly 12-foot-tall ceilings. The kitchen will showcase sleek stainless steel appliances and elegant quartz countertops, adding to the allure of these exceptional spaces. Step right onto Harrison Ave and immerse yourself in the vibrant atmosphere of Downtown Panama City. Explore a plethora of dining options, breweries, coffee shops, boutique shopping, art and photo galleries, pilates and boxing club, a marina, and much more just moments away. The first purchaser to secure a loft under contract will receive a complimentary one-year ''1909 Membership'' at History Class. Additionally, the initial five buyers who sign and place their deposit will enjoy a year of complimentary leasing for a private parking spot. An enticing opportunity awaits investors seeking a second home, vacation retreat, or income-generating property at an attractive price point. Presently, the renderings are in the conceptual stage, characterized by artistic interpretation. More precise renderings will be developed as construction progresses. Construction to be completed by end of 2025.
Show More Show Less

Property Features

436 Harrison Avenue #4, Panama City, Florida, 32401, USA offers the following features:

Bedrooms: 2
Bathrooms: 1 Full
Property Type: Residential
Status: Pending
Reference ID: 754003

Map