Elevated 1+ Acre Lot with Stunning Views Available

USD $36,500,000
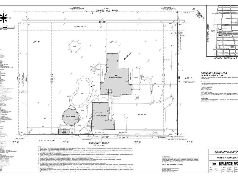
3 South Lake Trail, Palm Beach, Florida, 33480, USA

Property Highlights

  • Over 1 acre of elevated land
  • Potential to subdivide into 3 lots
  • Located on quiet cul-de-sac street
  • Mature trees providing privacy
  • Large lot size approximately 45,490 SF
  • Possible scenic views from second floor

Overview

16.6 feet of elevation! A tremendous 1+ acre land opportunity is situated high up on Chapel Hill and now available for sale. It has never been on the market before. The elevation is incredible, and the dimensions are ~300 x ~150, totaling 45,490 SF. Currently the property is platted for 2 buildable lots with the ability to possibly subdivide into 3 lots. Also, views could be amazing from a second-floor build. The location is superb as there are only 5 houses on this lovely cul de sac street. The property has many mature trees throughout, and the sense of privacy is exceptional. There is no other property on the island with this size, location, elevation and the ability to subdivide.
Show More Show Less

Property Features

3 South Lake Trail, Palm Beach, Florida, 33480, USA offers the following features:

Bedrooms: 3
Bathrooms: 3 Full
Property Type: Residential
Status: Active
Reference ID: 4-11079637

What's Nearby

Local businesses near 3 South Lake Trail, Palm Beach, Florida, 33480, USA:

School: < 1 mile
Public Transportation: < 1 mile
Hospital: < 1 mile
Gym: < 1 mile
Grocery/Shopping Center: < 1 mile
Police Station: < 1 mile

Map