Versatile Mixed-use Building in Trendy Oxford Village

USD $790,000
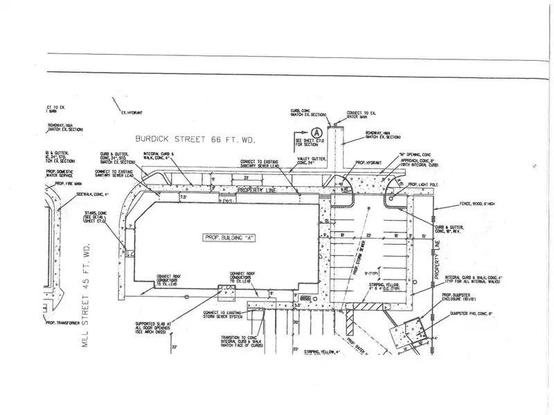
BUILDING A OF PUD East Burdick Street #BUILDING A OF PUD, Oxford, Michigan, 48371, USA

Property Highlights

  • Highest end commercial space in Oxford
  • Public water, sewer, gas, electric
  • Adjacent parking with 33 new spaces
  • Three stories, 8,900 sq ft each
  • Mixed-use zoning with retail and residential
  • Part of three-building planned development

Overview

Unique Opportunity to Own the Highest End Commercial Space In Trendy, Thriving Village of Oxford ** All Preliminary Hard Work is Done ** Public Water, Sewer, Gas, Electric ** Parking is Adjacent to Property with 33 Brand New Parking Spaces , Nearly Complete w/ Handicapped Spaces Included in Design ** 3 Stories with 8900 Sq Feet Per Level ** Currently Slated for Retail on First Floor, Commercial on Second Floor and 4 Residential Condo Units on 3rd Floor ** Zoned C-1 Transitional and Mixed Use Allowing Multi Opportunities ** This is Building A of a 3 Building PUD ** New Legal to Follow Once Adjacent Parking is Complete
Show More Show Less

Property Features

BUILDING A OF PUD East Burdick Street #BUILDING A OF PUD, Oxford, Michigan, 48371, USA offers the following features:

Property Type: VacantLand
Status: Active
Reference ID: 20230037273

Map