Custom Mountain Retreat with Indoor Pool and Horse Barn

USD $975,000
4904 Sierra Pines Drive, Mariposa, California, 95338, USA

Property Highlights

  • Over 10 acres with pond and lake access
  • Large 4-stall horse barn and arena
  • Indoor pool and spa access from bedrooms
  • Vaulted beamed ceilings and wood stove
  • Grand living room with rock fireplace
  • Studio with private entrance and wood stove

Overview

This outstanding custom built home has so many unique qualities and beauty, it is a must-see mountain gem. Bosting over 3,000 sf of living space on over 10 acres that runs into the Lush Meadows pond, Dawn Lake (but is outside of the association). Circular driveway, double door entry & gorgeous mountain views from all around. Large 4 stall horse barn that could alternately be the perfect game room if you're planning on making this a short-term rental (home is ADA compliant & turn-key for a primary residence, vacation home or STR), fenced garden area, horse arena & fenced dog run. This home radiates quality & craftmanship with a large master suite featuring vaulted beamed ceilings with tongue & groove, wood stove, his & her sinks & closets with access to the indoor pool & spa from every bedroom. Jetted guest tub, large walk-in pantry, formal dining, grand Livingroom with a statement rock fireplace & decks for summer nights & entertaining. There is a studio with sink & fridge hookup + more closet space, this could be the perfect office or another bedroom with a wood stove and its own entrance. Downstairs from the kitchen is the library/bedroom/family room/office with a bathroom and its own cozy rock fireplace. This is your mountain retreat, close to Yosemite, the beautiful town of Mariposa or a short drive to Oakhurst for your conveniences. Hiking, biking, paddleboarding, kayaking, fishing... it's right outside your door.
Show More Show Less

Property Features

4904 Sierra Pines Drive, Mariposa, California, 95338, USA offers the following features:

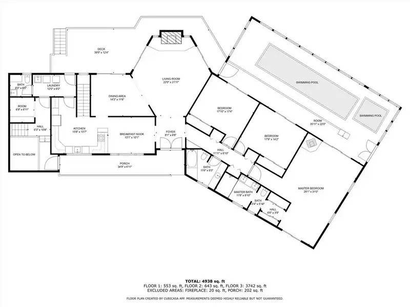
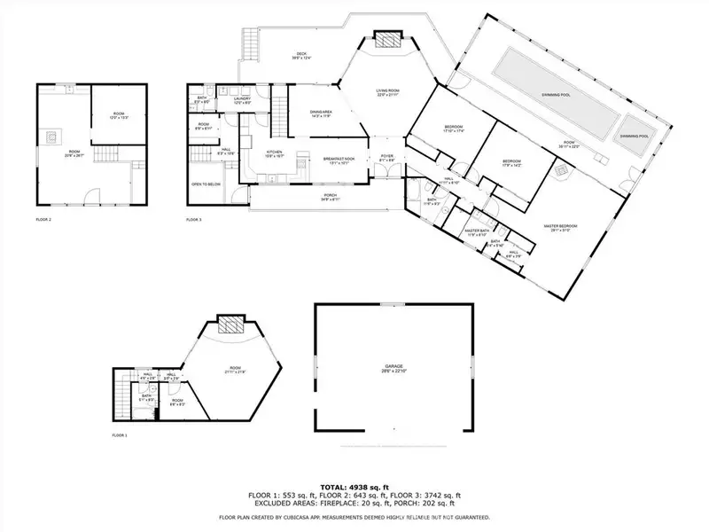
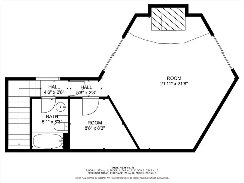
Bedrooms: 3
Bathrooms: 4 Full
Living Area: 3088sf
Property Type: Residential
Status: Active
Reference ID: FR25255216

Map