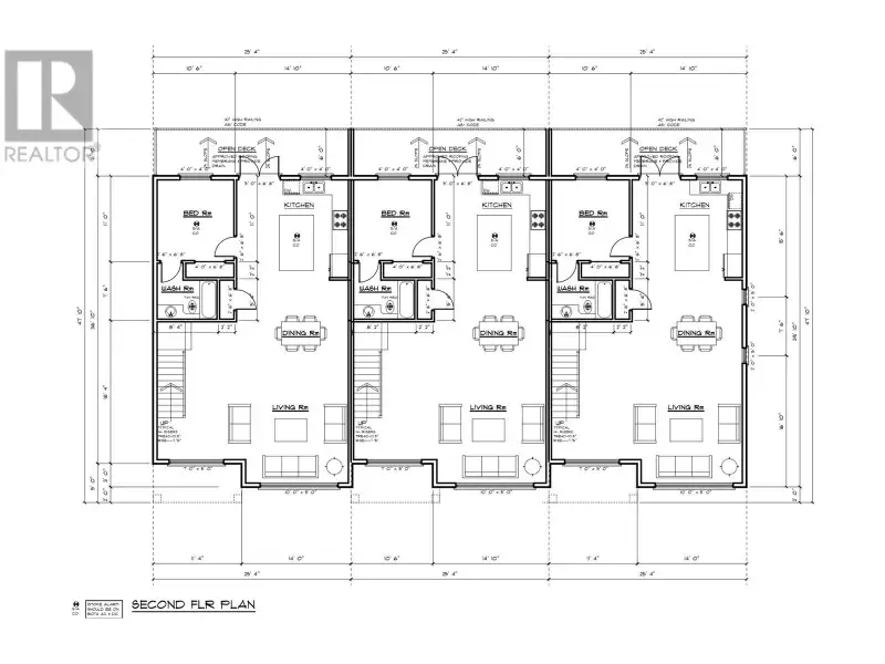
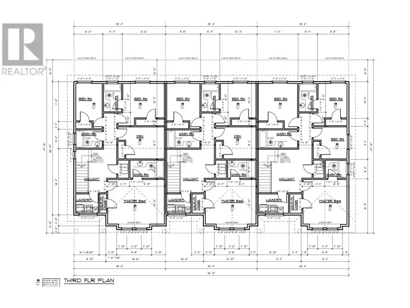
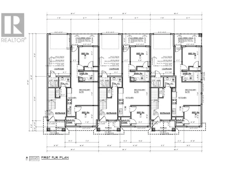
Large 8200 Sqft Lot with Triplex Design Plans

CAD $1,099,000 (USD $787,647) *current conversion
12333 227 Street, Maple Ridge, British Columbia, V2X 6J9, Canada

Property Highlights

  • Large 8200 sq ft lot
  • Preliminary triplex design available
  • City feedback received on plans
  • Qualifies for 4 dwelling units
  • Option to build duplex with suites

Overview

INVESTOR / BUILDER ALERT! Value is mostly in the land. Large 8200 square ft lot with preliminary triplex design drafted and review comments back from the City of Maple Ridge. As per Bill 44 SSMUH (Small-scale Multi unit Housing) qualifies for 4 dwelling units. Either continue with the triplex design or build a duplex with suites. (id:58403)
Show More Show Less

Property Features

12333 227 Street, Maple Ridge, British Columbia, V2X 6J9, Canada offers the following features:

Property Type: Residential
Status: Active
Reference ID: 1059847

Map