Resort-style Family Home with Solar-heated Pool and Deck

Price Upon Request
14B Clovelly Road, Hornsby, NSW, 2077, Australia

Property Highlights

  • Solar-heated swimming pool
  • Undercover entertaining deck with heating
  • Renovated kitchen with granite benchtops
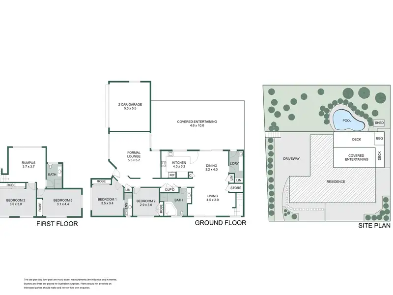
  • Double lock-up garage with internal access
  • Master bedroom with built-in robes
  • Main bathroom with spa bath

Overview

Impeccably presented and beautifully appointed throughout, this stunning residence offers a luxurious family lifestyle where every detail has been designed for comfort, style, and effortless entertaining. Set privately back from the street, this home enjoys complete peace and seclusion - tranquillity, space, and lifestyle all combine to make this property truly special. Here, you'll feel worlds away while still being moments from everything Hornsby has to offer. The home's resort-inspired outdoor spaces are exceptional, featuring a solar-heated swimming pool and an expansive undercover entertaining deck with outdoor heating and ceiling fans - the perfect setting for year-round enjoyment. Inside, multiple living zones provide flexibility for modern family life. A generous upstairs rumpus offers room to work, relax, or play, while the granite kitchen forms the heart of the home, beautifully renovated with quality appliances and timeless finishes. The rooms are equally impressive, with all bedrooms featuring built-ins and ceiling fans. The master suite includes a renovated ensuite, while the main bathroom offers a touch of luxury with a spa bath. Every detail has been thoughtfully considered, from plantation shutters and a renovated laundry to excellent storage throughout. Perfectly positioned in a whisper-quiet pocket, this home combines resort-style comfort with modern practicality - an ideal retreat for families seeking space, privacy, and sophistication. Features: • Solar-heated pool with automated acid and chlorine system • Expansive covered entertaining deck with heating and ceiling fans • Private position set back from the street – offering peace, space, and seclusion • Renovated granite kitchen with modern appliances • Master bedroom with built-ins and renovated ensuite • Main bathroom featuring spa bath • Multiple living zones including spacious upstairs rumpus • Renovated laundry with ample storage • Plantation shutters throughout • Split-system air conditioning and ceiling fans • Double lock-up garage with internal access • Excellent storage throughout A hidden gem delivering luxury, privacy, and resort-style family living - this is a home you'll fall in love with the moment you arrive. Disclaimer: All information contained herein is gathered from sources we believe to be reliable. However, we cannot guarantee its accuracy and interested persons should rely on their own enquiries.
Show More Show Less

Property Features

14B Clovelly Road, Hornsby, NSW, 2077, Australia offers the following features:

Bedrooms: 4
Bathrooms: 3 Full
Property Type: residential
Status: Active
Reference ID: 222P609513

Map

The Local Vibe