Riverfront Property with Approved Plans in Hopefield

ZAR R1,350,000 (USD $79,493) *current conversion
Hopefield, South Africa

Property Highlights

  • Largest remaining undeveloped riverfront plot
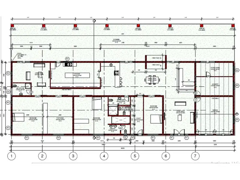
  • Approved building plans included
  • Foundations and steel framework completed
  • First batch of bricks provided
  • Close to top Western Cape school
  • Near Langebaan and West Coast National Park

Overview

Sole Mandate DonΓÇÖt miss this unique opportunity to own one of the last remaining undeveloped riverfront propertiesΓÇöand one of the largest plots available in the area. This generous erf comes with approved building plans for a beautifully designed, spacious home, offering a seamless start to your dream build. The foundations are already complete, with uprights bolted in place and steel framework for the remainder of the structure included. YouΓÇÖll also receive the first batch of bricks, making it even easier to get started. Everything is in order and ready to goΓÇösimply bring your vision to life. What makes this property truly special is its unsubdivided, original size, offering rare potential for future subdivision or expansive living space. Opportunities like this are increasingly rare, so move fast to secure this prime location. This property is located in the charming town of Hopefield, Western Cape. With its prime location, you'll enjoy easy access to some of the best local amenities, including one of the best schools in the Western Cape, a fantastic selection of eateries, and a farmer's market every Saturday. For those who love staying active, there are plenty of options to choose from, including yoga and dance classes and a local sports club with badminton courts. And if you're looking to explore the beautiful natural surroundings, you'll be spoiled for choice with short drives to Langebaan, Bokkom Laan in Velddrif, Paternoster, and the West Coast National Park, all within 35 minutes.
Show More Show Less

Property Features

Hopefield, South Africa offers the following features:

Property Type: Land
Status: Active
Reference ID: 2592386

Map