Exclusive Andalucian Villa with Mediterranean Sea Views

EUR €11,800,000 (USD $13,750,510) *current conversion
Benahavís, AN, 29679, Spain

Property Highlights

  • Large flat plot with Mediterranean sea views
  • Spacious courtyard with central fountain
  • Elevator and impressive staircase access
  • Wine cellar, gym, sauna, cinema on pool level
  • Separate two-bedroom apartment above garage
  • Exclusive community with golf and tennis amenities

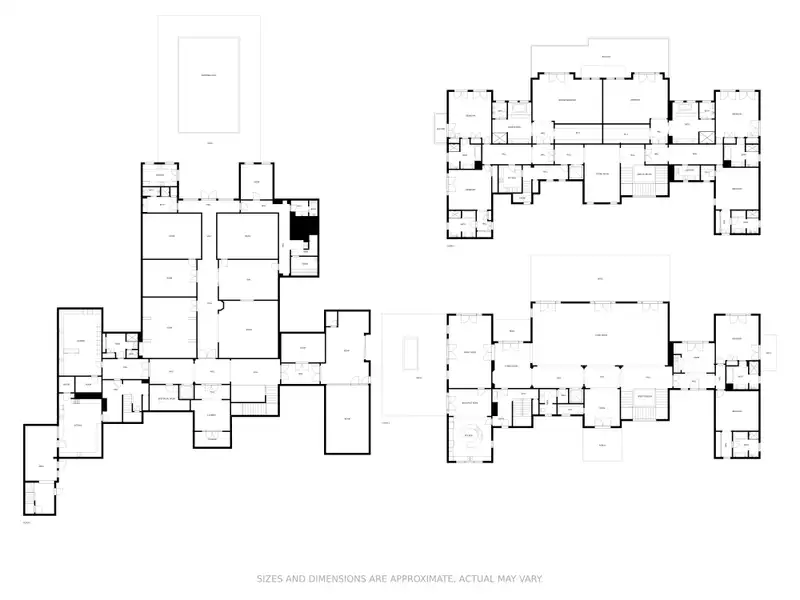
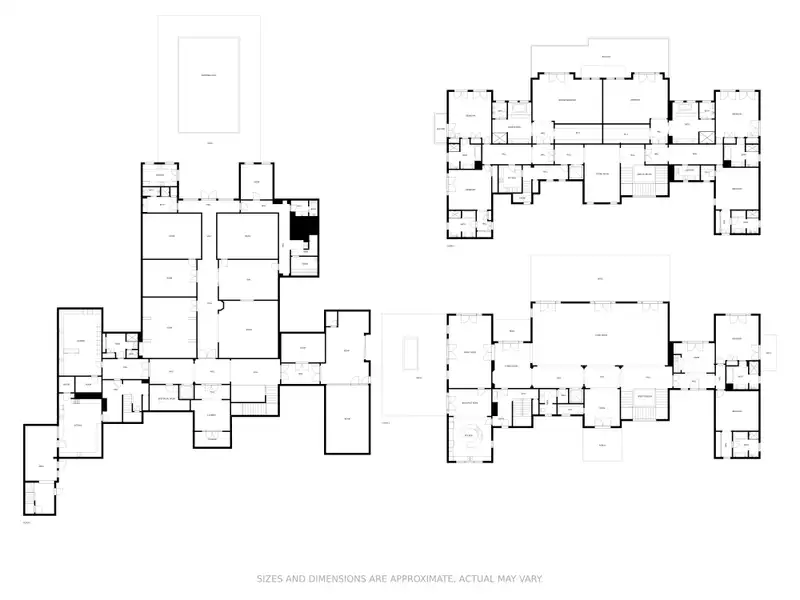
Overview

This magnificent ten bedroom Andalucian style villa sits on a large flat plot with views across the stunning countryside to the Mediterranean sea. This beautiful property is accessed via a large courtyard with a fountain as the centre piece. The main house is distributed over three floors accessed by an impressive staircase or the elevator. On the pool level there is a wine cellar, gymnasium, sauna area and cinema room, showers and a kitchen. The gardens of this home are immaculate and above the large garage is a separate two bedroom apartment with its own entrance. La Zagaleta is a very exclusive and secure countryside community located on nine hundred hectares of land. It sits at the foothills of the Sierra Bermeja hills and offers wonderful sea and countryside views. Within this exclusive community residents can enjoy the five star facilities provided, two superb golf courses with an excellent clubhouse and restaurant, the equestrian centre, tennis club and trekking and cycling
Show More Show Less

Property Features

Benahavís, AN, 29679, Spain offers the following features:

Bedrooms: 10
Bathrooms: 10 Full
Living Area: 26080sf
Property Type: Single Family
Status: Active
Reference ID: STRANDP7017

What's Nearby

Local businesses near Benahavís, AN, 29679, Spain:

School: 1.7 miles
Grocery/Shopping Center: 1.8 miles
Gym: 1.9 miles
Public Transportation: 2 miles
Police Station: 2 miles
Hospital: 3.6 miles

Map