Charming 1913 Home with Courtyard in Prime Location

EUR €395,000
Bonn, Germany

Property Highlights

  • Prime residential area near the Rhine
  • Spacious living space over three floors
  • Open-plan living and dining room
  • Kitchen adjacent to living area
  • Small balcony overlooking garden
  • Covered storage in inner courtyard

Overview

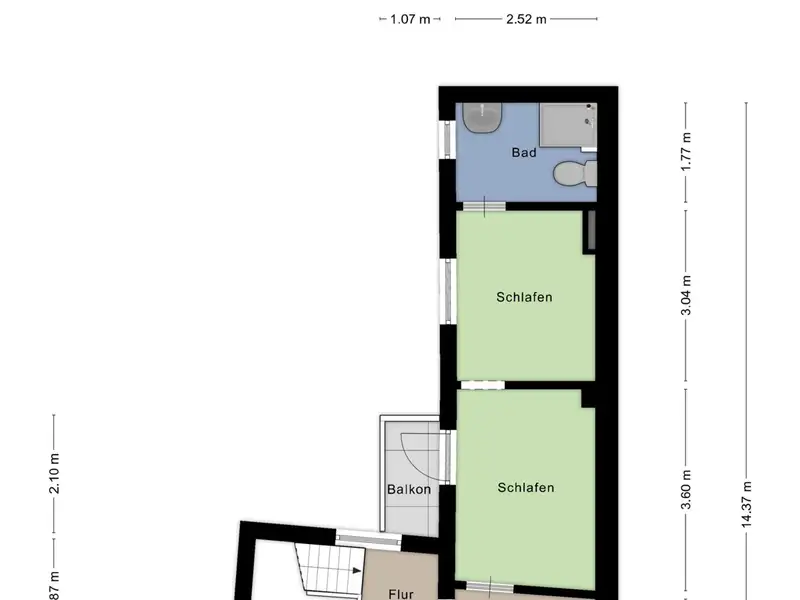
For sale is a charming family home from 1913 with a total living space of around 127 m² on a plot of approx. 189 m². The property, which is in need of renovation, is located in a prime residential area of Bonn-Plittersdorf, in the immediate vicinity of the Rhine. This is a rare opportunity for creative minds who want to design their dream home according to their individual ideas. With the special charm of times gone by and the possibility of integrating modern comforts, this house offers enormous potential. The property comprises a total of five rooms, which offer you a wide range of possible uses. Whether for a small family or as a couple with a home office - the well thought-out room layout over three floors creates a spacious living atmosphere. On the first floor, you will find a bright, inviting living and dining room, which creates a pleasant atmosphere thanks to its open-plan design. Adjacent to this is the practical kitchen. The first cozy bedroom and a bathroom are also available here. A separate guest WC is provided for your visitors. Four further rooms on the upper floor of the house create sufficient space for additional retreats, guest rooms or a home office. One of the rooms has a small balcony facing the garden - an idyllic place to get some fresh air and enjoy the tranquillity of the surroundings. The en-suite bathroom provides the necessary comfort on this floor. The charming inner courtyard of the house with its cozy atmosphere invites you to linger and relax. It also offers spacious, covered storage options and therefore plenty of storage space for your personal treasures. All in all, this property presents itself as a rare opportunity for anyone looking for a diamond in the rough with potential to design it to their own liking. Don't miss out on this opportunity and arrange a viewing today to see the many possibilities of this special home for yourself!
Show More Show Less

Property Features

Bonn, Germany offers the following features:

Bedrooms: 3
Bathrooms: 2 Full
Living Area: 1463.89sf
Property Type: Residential
Status: Active
Reference ID: 25378009

Map