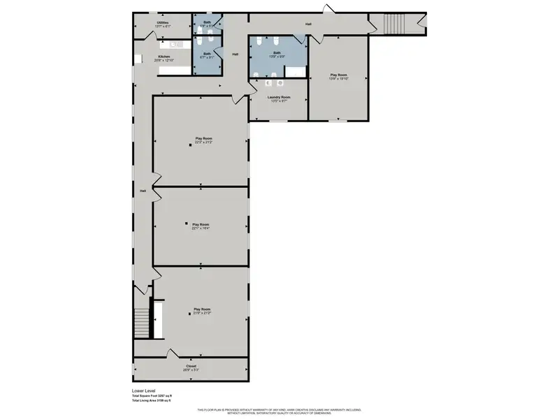
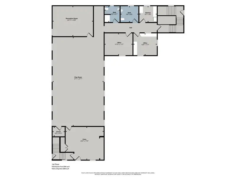
Large 6400 Sq Ft Daycare Facility on 2 Acres

USD $379,900
8546 Whitneyville Avenue Southeast, Alto, Michigan, 49302, USA

Property Highlights

  • 6400 sq ft licensed daycare facility
  • Large 2-acre parcel in Caledonia Schools
  • 28x48 great room with cathedral ceilings
  • 5 bathrooms and 2 kitchens
  • Fully finished walkout basement
  • Multiple offices and storage spaces

Overview

6400 sq ft Licensed Daycare Facility on a large 2 Acre parcel in Caledonia Schools. Very user-friendly floorplan including a 28x48 Great room with cathedral ceilings, 5 Bathrooms, 2 Kitchens, multiple office spaces, storage spaces, laundry room and Huge play areas throughout. Fully finished walkout basement. Mechanicals have all been updated including 2 Newer HVAC units. There is a full fire suppression/sprinkling system, type 2 well, and several accessibility features. Tons of parking, storage garage, fenced in area, and large yard space. Property has unlimited commercial possibilities and could easily be used as a large 5+ Bedroom single family home. Unbeatable location just S of 84th St next to the destination Deep Roots Produce Farm & Petting Zoo. Hurry to invest in this one today!
Show More Show Less

Property Features

8546 Whitneyville Avenue Southeast, Alto, Michigan, 49302, USA offers the following features:

Bathrooms: 5 Full
Living Area: 6399sf
Property Type: Residential
Status: Active
Reference ID: 25040341

Map